norelem uses cookies to optimally design and continually improve the website. By continuing to use this website, you agree to the use of cookies. You can find more information about cookies in our Data protection declaration.okay
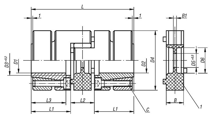
Elastomer dog couplings with conical hub and clamping ring (similar to DIN 69002)
23021

Elastomer dog couplings with conical hub and clamping ring...

go back

Item description/product images

DescriptionMaterial:Spider polyurethane hardness Shore 98A.
Hub aluminium.
Conical ring carbon steel.
Note:This coupling series is particularly suitable for use in high speed main spindle or drill spindle drives. Before the plug-in assembly, both clamping ring hubs must be fastened to the shafts with the correct tightening torque. Lightly oil the spider to ease assembly.Assembly:The shaft to hub bore fit should be a transition fit. The play should be max. 0.02 mm. i.e:
shaft Ø 25 k6
bore Ø 25 G6.
Bores smaller than D1/D2 min. are possible, however an optimal transfer of the nominal torque is no longer guaranteed.
On request:Hub bores D1 and D2 with separate tolerance class or range.Drawing reference:
1) elastomer spider
Special features:
RoHS
DownloadHere is all the information as a PDF datasheet:

Are you looking for CAD data? These can be found directly in the product table.
 Datasheet 23021 Elastomer dog couplings with conical hub and clamping ring (similar to DIN 69002) 169 kB
 Technical information about shaft couplings 2,3 MB

Drawings

Elastomer dog couplings with conical hub and clamping ring (similar to DIN 69002)

Overview of items (compressed)

Item selection/filter
Order No.SizeNominal
torque
Nm
Moment of
inertia
(10⁻³ kgm²)
Static resistance
to torsion
Nm/arcmin
Max.
axial shaft
displacement ±
Max.
lateral shaft
displacement
Radial spring
stiffness
N/mm
Tightening
torque of
screws Nm
max.
rpm
CADAcc.PriceOrder
23021-01010100,0150,040,50,1600230000 on request
23021-01717170,050,240,50,12100324000 on request
23021-04343430,190,40,50,12500619000 on request
23021-06060600,280,60,50,12600617500 on request
23021-1501501500,651,0510,13300615000 on request
23021-3203203202210,1245003012000 on request
23021-5005005005,65,810,155900509500 on request
23021-70070070013810,1570001008000 on request
Order No.

D1/D2
predrilled
D1/D2
min.
D1/D2
max.
D3D4D5D6LL1L2L3BB1C
(DIN 912-12.9)
CADAcc.PriceOrder
23021-010661417328,510,55018,51315,51024x M3 on request
23021-017991922409,518662516211236x M4 on request
23021-043101224295012,527783018251434x M5 on request
23021-060121226305512,527783018251434x M5 on request
23021-150121736406514,530903520301548x M5 on request
23021-320182040468016,5381144524401844x M8 on request
23021-5002022485810020,5471385528492254x M10 on request
23021-7002425607212022,5581556133542564x M12 on request
My norelemE-mailPassword
Shopping cart
Number of items: 0
Amount: 0.00  
shopping cart
欢迎扫描二维码
咨询诺瑞朗官方客服微信
China
苏ICP备20011289号-1  苏公网安备32058502011222 Sitemap Print Recommended Top
Copyright © 2025 norelem. All rights reserved. Tel. +49 71 45/206-44 to 45 · Fax +49 71 45/206-83