|
|
|
27878-06Concealed hinges steel or stainless steel, folded edge up to 24... |
go back |
|
Item description/product images |
|
|
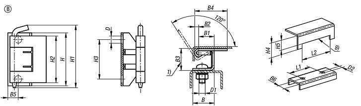
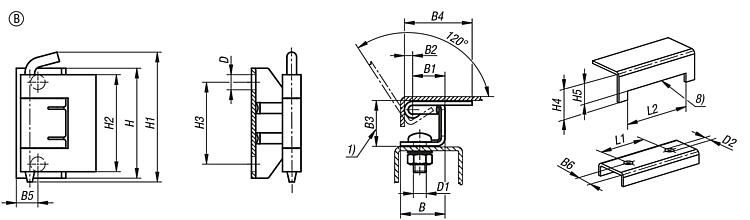
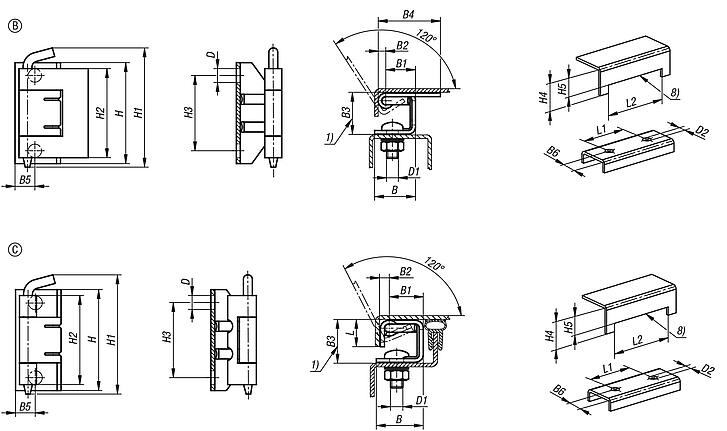
DescriptionProduct description:Concealed hinges are usually employed for functional or visual reasons. The hinge is mounted on the inside edge of the door and frame and is only visible when the door is open. Material:Version:Door part untreated steel. Frame part and pin electro zinc-plated steel. Door part, frame part and pin bright stainless steel. Pin natural tone POM. O-ring black.Note:For on-frame doors. Hinges not visible. Folded edge 18, 23 or 24 mm. For right or left use. Opening angle 120°. Frame part for screwing on.
Form B: Door part can be welded onto the door leaf Form C: Door part can be welded to the door edge
If mounting conditions are restricted, the POM pin can be fitted from underneath; this pin is self-locking.Application:- Machine and plant construction - Switchboxes and control housings - Medical and laboratory technology - Transport and conveyor systemsDrawing reference:1) Folded edge 2) Pin version: without slot 3) Pin version: with slot incl. DIN 6799 retaining washer 4) Pin version: with slot incl. O-ring 5) Pin type: self-locking 6) Fastening type door part: screw-on 7) Fastening type door part: weld-on 8) Notch on the door Special features: DownloadHere is all the information as a PDF datasheet:
Are you looking for CAD data? These can be found directly in the product table.
|
Drawings (total overview) |
Concealed hinges steel or stainless steel, folded edge up to 24 mm |
More information |
| Order No. | Form | Door part fastening | Pin version | Pin material | Main material | B | B1 | CAD | Acc. | Price | Order |
|---|
| 27878-06-0122118 | A | weldable | without slot | steel | steel | 18,15 | 26,4 |  | | on request | | | 27878-06-0122124 | A | weldable | without slot | steel | steel | 18,15 | 32,4 |  | | on request | | | 27878-06-0123118 | A | weldable | with slot incl. retaining washer | steel | steel | 18,15 | 26,4 |  | | on request | | | 27878-06-0123124 | A | weldable | with slot incl. retaining washer | steel | steel | 18,15 | 32,4 |  | | on request | | | 27878-06-0124118 | A | weldable | with slot incl. O-ring | steel | steel | 18,15 | 26,4 |  | | on request | | | 27878-06-0124124 | A | weldable | with slot incl. O-ring | steel | steel | 18,15 | 32,4 |  | | on request | | | 27878-06-0112118 | A | screw on | without slot | steel | steel | 18,15 | 26,4 |  | | on request | | | 27878-06-0112124 | A | screw on | without slot | steel | steel | 18,15 | 32,4 |  | | on request | | | 27878-06-0113118 | A | screw on | with slot incl. retaining washer | steel | steel | 18,15 | 26,4 |  | | on request | | | 27878-06-0113124 | A | screw on | with slot incl. retaining washer | steel | steel | 18,15 | 32,4 |  | | on request | | | 27878-06-0114118 | A | screw on | with slot incl. O-ring | steel | steel | 18,15 | 26,4 |  | | on request | | | 27878-06-0114124 | A | screw on | with slot incl. O-ring | steel | steel | 18,15 | 32,4 |  | | on request | | | 27878-06-1126424 | A | weldable | self-locking | POM | stainless steel A2 | 18,15 | 32,4 |  | | on request | | | 27878-06-1122418 | A | weldable | without slot | POM | stainless steel A2 | 18,15 | 26,4 |  | | on request | | | 27878-06-1122218 | A | weldable | without slot | stainless steel 1.4305 | stainless steel A2 | 18,15 | 26,4 |  | | on request | | | 27878-06-1122224 | A | weldable | without slot | stainless steel 1.4305 | stainless steel A2 | 18,15 | 32,4 |  | | on request | | | 27878-06-1123224 | A | weldable | with slot incl. retaining washer | stainless steel 1.4305 | stainless steel A2 | 18,15 | 32,4 |  | | on request | | | 27878-06-1123318 | A | weldable | with slot incl. retaining washer | stainless steel 1.4305 | stainless steel A2 | 18,15 | 26,4 |  | | on request | | | 27878-06-1124218 | A | weldable | with slot incl. O-ring | stainless steel 1.4305 | stainless steel A2 | 18,15 | 26,4 |  | | on request | | | 27878-06-1124224 | A | weldable | with slot incl. O-ring | stainless steel 1.4305 | stainless steel A2 | 18,15 | 32,4 |  | | on request | | | 27878-06-1116424 | A | screw on | self-locking | POM | stainless steel A2 | 18,15 | 32,4 |  | | on request | | | 27878-06-1112418 | A | screw on | without slot | POM | stainless steel A2 | 18,15 | 26,4 |  | | on request | | | 27878-06-1112218 | A | screw on | without slot | stainless steel 1.4305 | stainless steel A2 | 18,15 | 26,4 |  | | on request | | | 27878-06-1112224 | A | screw on | without slot | stainless steel 1.4305 | stainless steel A2 | 18,15 | 32,4 |  | | on request | | | 27878-06-1113224 | A | screw on | with slot incl. retaining washer | stainless steel 1.4305 | stainless steel A2 | 18,15 | 32,4 |  | | on request | | | 27878-06-1113318 | A | screw on | with slot incl. retaining washer | Stainless steel 1.4301 | stainless steel A2 | 18,15 | 26,4 |  | | on request | | | 27878-06-1114218 | A | screw on | with slot incl. O-ring | stainless steel 1.4305 | stainless steel A2 | 18,15 | 26,4 |  | | on request | | | 27878-06-1114224 | A | screw on | with slot incl. O-ring | stainless steel 1.4305 | stainless steel A2 | 18,15 | 32,4 |  | | on request | |
| Order No. | B2 | B3 | B4 | B5 | B6 | B7 | D | D1 | D2 | H | H1 | L | L1 | L2 | L3 | L4 | L5 | S | S1 | CAD | Acc. | Price | Order |
|---|
| 27878-06-0122118 | 5,85 | 18 | - | 6 | 6,5 | 24 | 6 | - | 11,7 | 60 | 75 | 2,5 | - | - | 9 | 42 | 12 | 2,5 | 2 |  | | on request | | | 27878-06-0122124 | 5,85 | 24 | - | 6 | 6,5 | 24 | 6 | - | 11,7 | 60 | 75 | 8,5 | - | - | 9 | 42 | 12 | 2,5 | 2 |  | | on request | | | 27878-06-0123118 | 5,85 | 18 | - | 6 | 6,5 | 24 | 6 | - | 11,7 | 60 | 73,5 | 2,5 | - | - | 9 | 42 | 12 | 2,5 | 2 |  | | on request | | | 27878-06-0123124 | 5,85 | 24 | - | 6 | 6,5 | 24 | 6 | - | 11,7 | 60 | 73,5 | 8,5 | - | - | 9 | 42 | 12 | 2,5 | 2 |  | | on request | | | 27878-06-0124118 | 5,85 | 18 | - | 6 | 6,5 | 24 | 6 | - | 11,7 | 60 | 73,5 | 2,5 | - | - | 9 | 42 | 12 | 2,5 | 2 |  | | on request | | | 27878-06-0124124 | 5,85 | 24 | - | 6 | 6,5 | 24 | 6 | - | 11,7 | 60 | 73,5 | 8,5 | - | - | 9 | 42 | 12 | 2,5 | 2 |  | | on request | | | 27878-06-0112118 | 5,85 | 18 | 6 | 6 | 6,5 | 24 | 6 | 5,3 | 11,7 | 60 | 75 | 2,5 | 6 | 48 | 9 | 42 | 12 | 2,5 | 2 |  | | on request | | | 27878-06-0112124 | 5,85 | 24 | 6 | 6 | 6,5 | 24 | 6 | 5,3 | 11,7 | 60 | 75 | 8,5 | 6 | 48 | 9 | 42 | 12 | 2,5 | 2 |  | | on request | | | 27878-06-0113118 | 5,85 | 18 | 6 | 6 | 6,5 | 24 | 6 | 5,3 | 11,7 | 60 | 73,5 | 2,5 | 6 | 48 | 9 | 42 | 12 | 2,5 | 2 |  | | on request | | | 27878-06-0113124 | 5,85 | 24 | 6 | 6 | 6,5 | 24 | 6 | 5,3 | 11,7 | 60 | 73,5 | 8,5 | 6 | 48 | 9 | 42 | 12 | 2,5 | 2 |  | | on request | | | 27878-06-0114118 | 5,85 | 18 | 6 | 6 | 6,5 | 24 | 6 | 5,3 | 11,7 | 60 | 73,5 | 2,5 | 6 | 48 | 9 | 42 | 12 | 2,5 | 2 |  | | on request | | | 27878-06-0114124 | 5,85 | 24 | 6 | 6 | 6,5 | 24 | 6 | 5,3 | 11,7 | 60 | 73,5 | 8,5 | 6 | 48 | 9 | 42 | 12 | 2,5 | 2 |  | | on request | | | 27878-06-1126424 | 5,85 | 24 | - | 6 | 6,5 | 24 | 6 | - | 11,7 | 60 | 87 | 8,5 | - | - | 9 | 42 | 12 | 2,5 | 2 |  | | on request | | | 27878-06-1122418 | 5,85 | 18 | - | 6 | 6,5 | 24 | 6 | - | 11,7 | 60 | 87 | 2,5 | - | - | 9 | 42 | 12 | 2,5 | 2 |  | | on request | | | 27878-06-1122218 | 5,85 | 18 | - | 6 | 6,5 | 24 | 6 | - | 11,7 | 60 | 75 | 2,5 | - | - | 9 | 42 | 12 | 2,5 | 2 |  | | on request | | | 27878-06-1122224 | 5,85 | 24 | - | 6 | 6,5 | 24 | 6 | - | 11,7 | 60 | 75 | 8,5 | - | - | 9 | 42 | 12 | 2,5 | 2 |  | | on request | | | 27878-06-1123224 | 5,85 | 24 | - | 6 | 6,5 | 24 | 6 | - | 11,7 | 60 | 77 | 8,5 | - | - | 9 | 42 | 12 | 2,5 | 2 |  | | on request | | | 27878-06-1123318 | 5,85 | 18 | - | 6 | 6,5 | 24 | 6 | - | 11,7 | 60 | 77 | 2,5 | - | - | 9 | 42 | 12 | 2,5 | 2 |  | | on request | | | 27878-06-1124218 | 5,85 | 18 | - | 6 | 6,5 | 24 | 6 | - | 11,7 | 60 | 77 | 2,5 | - | - | 9 | 42 | 12 | 2,5 | 2 |  | | on request | | | 27878-06-1124224 | 5,85 | 24 | - | 6 | 6,5 | 24 | 6 | - | 11,7 | 60 | 77 | 8,5 | - | - | 9 | 42 | 12 | 2,5 | 2 |  | | on request | | | 27878-06-1116424 | 5,85 | 24 | 6 | 6 | 6,5 | 24 | 6 | 5,3 | 11,7 | 60 | 87 | 8,5 | 6 | 48 | 9 | 42 | 12 | 2,5 | 2 |  | | on request | | | 27878-06-1112418 | 5,85 | 18 | 6 | 6 | 6,5 | 24 | 6 | 5,3 | 11,7 | 60 | 87 | 2,5 | 6 | 48 | 9 | 42 | 12 | 2,5 | 2 |  | | on request | | | 27878-06-1112218 | 5,85 | 18 | 6 | 6 | 6,5 | 24 | 6 | 5,3 | 11,7 | 60 | 75 | 2,5 | 6 | 48 | 9 | 42 | 12 | 2,5 | 2 |  | | on request | | | 27878-06-1112224 | 5,85 | 24 | 6 | 6 | 6,5 | 24 | 6 | 5,3 | 11,7 | 60 | 75 | 8,5 | 6 | 48 | 9 | 42 | 12 | 2,5 | 2 |  | | on request | | | 27878-06-1113224 | 5,85 | 24 | 6 | 6 | 6,5 | 24 | 6 | 5,3 | 11,7 | 60 | 77 | 8,5 | 6 | 48 | 9 | 42 | 12 | 2,5 | 2 |  | | on request | | | 27878-06-1113318 | 5,85 | 18 | 6 | 6 | 6,5 | 24 | 6 | 5,3 | 11,7 | 60 | 77 | 2,5 | 6 | 48 | 9 | 42 | 12 | 2,5 | 2 |  | | on request | | | 27878-06-1114218 | 5,85 | 18 | 6 | 6 | 6,5 | 24 | 6 | 5,3 | 11,7 | 60 | 77 | 2,5 | 6 | 48 | 9 | 42 | 12 | 2,5 | 2 |  | | on request | | | 27878-06-1114224 | 5,85 | 24 | 6 | 6 | 6,5 | 24 | 6 | 5,3 | 11,7 | 60 | 77 | 8,5 | 6 | 48 | 9 | 42 | 12 | 2,5 | 2 |  | | on request | |
|
Concealed hinges steel or stainless steel, folded edge up to 24 mm, Form B |
More information |
| Order No. | Form | Door part fastening | Pin material | Pin version | Main material | B | B1 | B2 | B3 | B4 | B5 | B6 | D | D1 | D2 | H | H1 | H2 | H3 | H4 | H5 | L1 | L2 | CAD | Acc. | Price | Order |
|---|
| 27878-06-0225123 | B | weldable | steel | loose | steel | 23 | 16,7 | 4,3 | 23 | 35 | 10 | 14 | 7 | M6 | 6,5 | 51 | 60,2 | 45 | 38 | 23 | 18 | 38 | 54 |  | | on request | |
|
Concealed hinges steel or stainless steel, folded edge up to 24 mm, Form C |
More information |
| Order No. | Form | Door part fastening | Pin version | Pin material | Main material | B | B1 | B2 | B3 | B5 | B6 | D | D1 | D2 | H | H1 | H2 | H3 | H4 | H5 | L | L1 | L2 | CAD | Acc. | Price | Order |
|---|
| 27878-06-0325123 | C | weldable | loose | steel | steel | 23 | 16,7 | 4,3 | 23 | 10 | 14 | 7 | M6 | 6,5 | 51 | 60,2 | 45 | 38 | 23 | 18 | 14,5 | 38 | 54 |  | | on request | |
|
Other items in this category |
|
|