norelem 使用 Cookies 以优化设计和持续改进网页。您通过继续使用网页,同意使用 Cookies。在我们的数据保护声明中可以找到有关 Cookies 主题的详细信息。同意
单面窄的灰口铸铁弯板 带栅格孔
01245

单面窄的灰口铸铁弯板 带栅格孔

返回

商品描述/产品说明

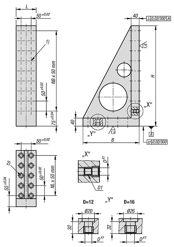
产品说明材料:GJL 300.规格:支撑面和夹紧面经高精度加工处理。提示:栅格间距为 50 ±0.02 mm。
弯板非常适合对工件和夹具进行垂直定位和固定。通过轴肩螺栓 07533 将弯板在工作平台 01126 和 01148 上定位和固定。
通过轴肩螺栓 07533-112065 固定系统尺寸 M12 的弯板。
通过轴肩螺栓 07533-116065 固定系统尺寸 M16 的弯板。
用于锁闭栅格孔的保护塞必须另行订购。
图纸提示:
1) 格栅孔
2) 轴肩螺栓安装孔
特点:
RoHS
下载此处为收集信息的 PDF:

查找 CAD 数据?请直接在产品列表中查找。
 Datasheet 01245 单面窄的灰口铸铁弯板 带栅格孔 196 kB
 格栅孔和格栅间距 M12、M16 技术资料 243 kB

图纸

单面窄的灰口铸铁弯板 带栅格孔

商品选择/筛选

订货号LBHD

D1N1=格栅孔数量固定孔
数量
NL=装配孔数量NB=装配孔数量CAD配件价格订购
01245-21218103010018030012M1210624 根据要求
01245-21223104010023040012M1214836 根据要求
01245-21228105010028050012M12181048 根据要求
01245-21618103010018030016M1610624 根据要求
01245-21623104010023040016M1614836 根据要求
01245-21628105010028050016M16181048 根据要求
我的 norelemE-Mail密码
购物车
商品数量: 0
总数: 0.00  
点击购物车
欢迎扫描二维码
咨询诺瑞朗官方客服微信
中国
苏ICP备20011289号-1  苏公网安备32058502011222 网页地图 打印 推荐 Top
Copyright © 2025 norelem. 保留所有权利。 电话 +49 71 45/206-44 至 45 · 传真 +49 71 45/206-83