norelem uses cookies to optimally design and continually improve the website. By continuing to use this website, you agree to the use of cookies. You can find more information about cookies in our Data protection declaration.okay

Item description/product images

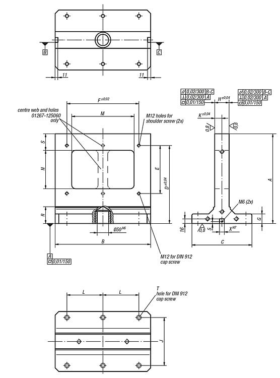
DescriptionMaterial:GJL 300.Version:Reference surfaces precision machinedNote:Subplates 01127 can be positioned and fastened to both sides of the window frame, permitting economical fixture exchanges. The window frames are positioned using centring bolts 03110 and T-slot keys 03240. Ring bolts for lifting are supplied.Special features:
RoHS
DownloadHere is all the information as a PDF datasheet:

Are you looking for CAD data? These can be found directly in the product table.
 Datasheet 01267 Tombstones window frame 154 kB

Drawings

Tombstones window frame

Item selection/filter

Order No.

ABCDEFGHJKLMNRSTXCADAcc.PriceOrder
My norelemE-mailPassword
Shopping cart
Number of items: 0
Amount: 0.00  
shopping cart
欢迎扫描二维码
咨询诺瑞朗官方客服微信
China
苏ICP备20011289号-1  苏公网安备32058502011222 Sitemap Print Recommended Top
Copyright © 2025 norelem. All rights reserved. Tel. +49 71 45/206-44 to 45 · Fax +49 71 45/206-83