norelem 使用 Cookies 以优化设计和持续改进网页。您通过继续使用网页,同意使用 Cookies。在我们的
数据保护声明
中可以找到有关 Cookies 主题的详细信息。
同意
全球分布
创意
AGB
版权说明
数据保护
产品
企业信息
服务
下载
新闻
联系方式
产品概览
固定
灵活的标准件系统
装配
装配系统
运动
用于机床和设备制造的系统/组件
检查
量具检具组件
夹紧
夹紧技术
控制和调节
电动机构
输送
输送和移动技术
technoshop
norelem inch
英制产品目录
01857-10
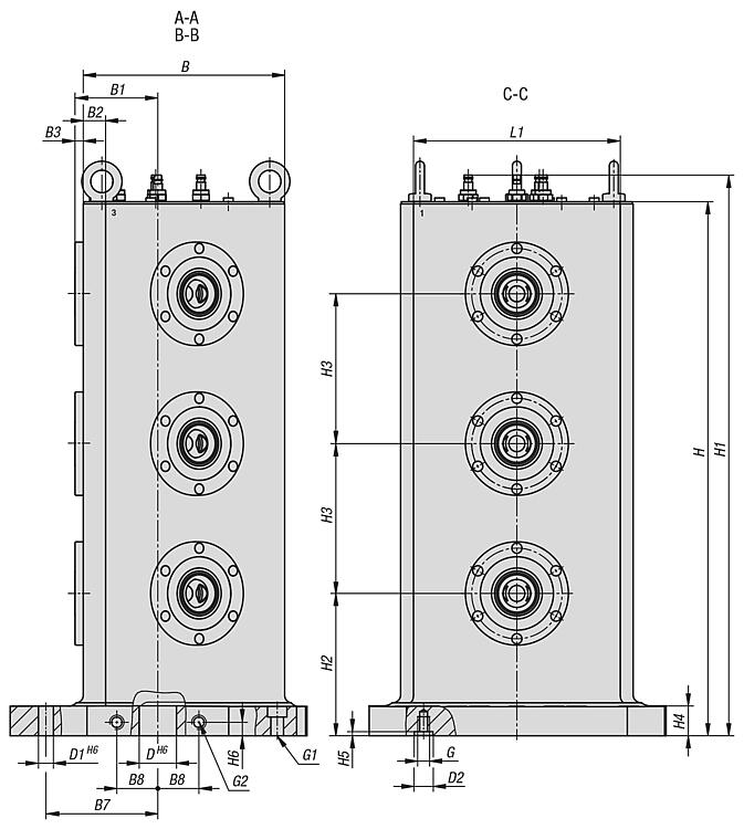
三面灰口铸铁塔式夹具,配有 UNILOCK 零点夹紧系统
返回
产品
产品概览
灵活的标准件系统
板件、 圆盘、 板材、 弯板、 四面弯板
四面弯板
三面灰口铸铁塔式夹具,配有 UNILOCK 零点夹紧系统
商品描述/产品说明
产品说明
产品描述:
带有集成 UNILOCK 夹持模块 EFM 138 的三面塔式夹具。集成的夹持模块可以在最短的时间内将夹持装置和夹具夹持或更换到塔式夹具上。因此,安装时间可以缩短,机器运行时间可以提升。
材料:
GJL 300 塔式夹具。
渗碳钢夹紧模块。
规格:
塔式夹具支撑面经过精密加工。
夹紧模块功能表面经过硬化和研磨处理。
提示:
三面塔式夹具与机床工作台相匹配,符合 DIN 55201 和 JIS6337-1980 标准。
夹紧模块通过气动连接集中驱动。
内置的弹簧组实现了高夹持力(在无压力状态下张紧)。
通过气动压力松开。
UNILOCK 夹紧销与固定螺钉 M10、M12、M16 配合使用时可能产生以下保持力:
- 保持力 (M10) 35000 N/模块
- 保持力 (M12) 50000 N/模块
- 保持力 (M16) 75000 N/模块
圆柱头螺钉 DIN EN ISO 4762 -12.9 的保持力
夹紧销只能在夹持模块中与已安装的可互换单元一起夹紧。
温度范围:
+5 °C 至 +60 °C。
附件:
- UNILOCK 夹紧销 42208.
- 零点夹持系统 UNILOCK 更换板 42755.
- UNILOCK 夹紧模块的保护螺栓 42796.
- UNILOCK 夹紧模块的保护塞 42796.
供货范围
- 塔式夹具。
- 运输螺栓。
- 操作说明。
图纸提示:
1) 打开接气口 G1/8
2) 接气口 G1/8 涡轮功能
特点:
下载
此处为收集信息的 PDF:
查找 CAD 数据?请直接在产品列表中查找。
Datasheet 01857-10 三面灰口铸铁塔式夹具,配有 UNILOCK 零点夹紧系统
419 kB
图纸
商品选择/筛选
订货号
类型 1
类型 2
L
H
B
B1
B2
B3
B4
B5
B6
B7
B8
D
D1
D2
CAD
配件
价格
订购
01857-10-138092004070
三面
带零点夹紧模块
400
713
270
111
30
11
100
160
80
150
55
50
20
25
根据要求
01857-10-138092005070
三面
带零点夹紧模块
500
713
270
111
30
11
200
100
-
200
75
50
20
25
根据要求
订货号
G
G1
G2
H1
H2
H3
H4
H5
H6
L1
L2
L3
L4
L5
L6
L7
L8
牵引力
带涡轮增压器
kN
CAD
配件
价格
订购
01857-10-138092004070
M12
M16
M16
748,5
190
200
40
5,5
18
277
150
50
100
160
80
250
25
24
根据要求
01857-10-138092005070
M12
M16
M16
748,5
190
200
40
5,5
18
277
200
100
-
-
-
300
25
24
根据要求
本类目的其他商品
<<
|
<
|
1-10
|
11-14
|
>
|
>>
01850
四面弯板
01850
灰口铸铁四面弯板
带预加工夹紧面
01850
灰口铸铁四面弯板
带栅格孔
01850
灰口铸铁四面弯板
带 T 型槽
01852
夹紧方形座,灰口铸铁
01854
灰口铸铁 4 面塔式夹具
带预加工夹紧面
01854
灰口铸铁 4 面塔式夹具
带栅格孔
01854-10
灰铸铁四面夹具塔式,带网格孔 用于多个夹紧系统
01855
灰口铸铁 6 面塔式夹具
带预加工夹紧面
01855
灰口铸铁 6 面塔式夹具
带栅格孔
<<
|
<
|
1-10
|
11-14
|
>
|
>>
我的 norelem
E-Mail
密码
忘记密码
首次登陆
购物车
商品数量:
0
总数:
0.00
€
点击购物车
欢迎扫描二维码
咨询诺瑞朗官方客服微信
Algérie
Andorra
Argentina
Australia
België
Bolivia
Bosna i Hercegovina
Brasil
Canada
Česká republika
Chile
中国
Colombia
Costa Rica
Cuba
Danmark
Dem. Peop. Rep. of Korea
Deutschland
Ecuador
Eesti
España
Georgia
香港
Hrvatska
India
Ireland
Ísland
Italia
Jamaica
日本
Latvija
Liechtenstein
Lietuvos
Luxemburg
Magyarország
Malaysia
Malta
México
Nederland
New Zealand
Norge
Österreich
Pakistan
Paraguay
Perú
Polska
Portugal
Principauté de Monaco
台灣
Rep. di San Marino
대한민국
România
Schweiz
Singapore
Slovenija
Slovensko
South Africa
Suomi
Sverige
Türkiye
United Kingdom
United States of America
Uruguay
Venezuela
Việt Nam
Ελλάδα
Κύπρος
Беларусь
България
Република Србија
Россия
Србија и Црна Гора
Україна
ישראל
الامارات العربية المتحدة
السعودية
ايران
مصر
ประเทศไทย
Chinese
English
苏ICP备20011289号-1
苏公网安备32058502011222
网页地图
打印
推荐
Top
Copyright © 2025 norelem. 保留所有权利。
电话 +49 71 45/206-44 至 45 · 传真 +49 71 45/206-83